生物质固废锅炉

生物质固废锅炉

主要经营参数范围
适用燃料热值:1500~5000kcal/kg
锅炉热功率:1MW~100MW(支持定制化设计)
锅炉热效率:80%~95%

系统模块

预处理

在输送过程中实现可控计量的仓储、缓存、配料、上料,使多种燃料实现等比例的混合上料保证物料大小均匀高可靠性分选和回收率

给料系统

炉前给料具有完善的密封、防回火、防爆消防及冷却系统,确保均匀稳定的输料和燃烧均匀。

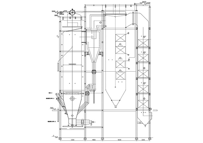
固废物CFB焚烧炉

合理的炉型结构和受热面布置,保障锅炉燃烧稳定。细节设计精巧,防护措施高效可靠。

环保处理

采用CFB低氮燃烧,满足NOX排放采用组合式烟气净化技术满足排放。

生物质固废锅炉专业定制解决方案
开启您的专属服务之旅